Найти специалиста
Войти
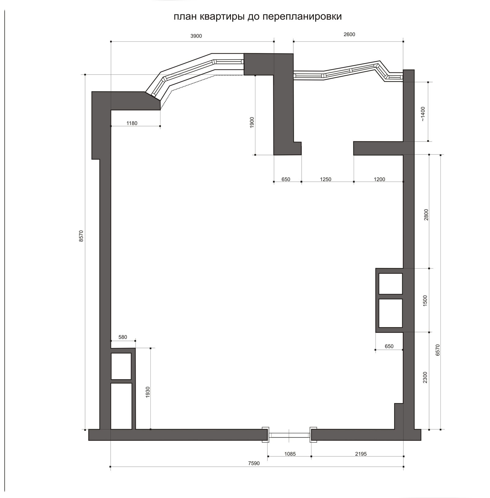
планировка 51 кв м
9 октября, 2024
Ulyana B
Портфолио
реализованный проект