Одноэтажный жилой дом (26.01ЕМ)
23 февраля, 2026Конструктивные решения
Дом выполнен по каркасной технологии с устройством фундамента в виде монолитной железобетонной плиты, обеспечивающей равномерное распределение нагрузок и высокую пространственную жесткость конструкции.
Наружные стены — каркасные, с утеплением и ветрозащитой согласно действующим нормам. Кровля — скатная, с увеличенными свесами, формирующими защищённую террасу и входную группу.
________________________________________
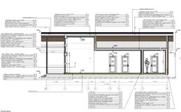
Архитектурное решение
Объем здания решен в современном стиле с лаконичными фасадами и выразительной кровлей.
Акцентом служит просторная крытая терраса с деревянными колоннами и ограждением.
Внешняя отделка:
• фасады — вертикальная имитация бруса,
• декоративные элементы (стойки, балки, ограждения) — дерево в контрастном оттенке,
• цоколь — монолитная железобетонная плита с защитной отделкой.
Такое решение подчеркивает вертикальность фасада и визуально увеличивает высоту здания.
________________________________________
Планировочная структура
Планировка дома функционально разделена на общественную и приватную зоны.
Общественная зона:
• кухня-гостиная с выходом на террасу,
• удобный входной узел с крыльцом.
Приватная зона:
• спальни,
• мастер-спальня,
• гардероб,
• санузлы,
• техническое помещение,
• прихожая и коридор.
Планировка обеспечивает рациональную организацию пространства и удобную связь между помещениями.
________________________________________
Внутренняя отделка
• Гостиная — отделка стен горизонтальной имитацией бруса, создающей ощущение тепла и уюта, а также визуально расширяющей пространство.
• Остальные жилые помещения — стены из гипсокартона под финишную отделку (покраска/декоративные покрытия).
• Санузлы — отделка стен керамической плиткой (кафель).
• Потолки — натяжной потолок.
• Полы — по железобетонной плите с устройством дополнительного утепления ЭППС толщиной 100мм, полусухой стяжкой с трубами теплого пола и чистового покрытия.
________________________________________
Итог
Проект сочетает современную архитектуру, энергоэффективную каркасную технологию и комфортную планировку. Дом ориентирован на круглогодичное проживание и отличается рациональным использованием площади, выразительным фасадом и продуманной внутренней организацией пространства.




