#029 Конкурс_БД7_2025
10 ноября, 2025Также проект победил в народном голосовании и занял первое место среди "Приз зрительских симпатий".
Данный дизайн-проект был разработан для известного медийного лица, юриста Екатерины Гордон и ее юридической компании "Гордон и Сыновья".
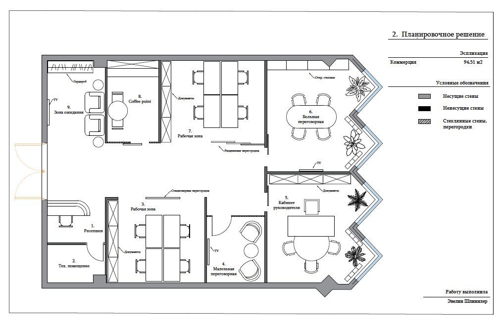
Объект находится в одном столичном бизнес-центре, и его площадь составляет 80 м2. Заказчиком был выбран стиль Ваби-Саби. Главная задача была сделать офисное помещение светлое и функциональное, но при этом статусное и подчеркивающее престиж компании перед партнёрами и клиентами.
Цветовая гамма основной зоны помещения была выбрана светло-серая в антивандальном исполнении - венецианская штукатурка. Оттенок способствует эффективной работе и не "утомляют" глаз в течении всего дня.
При входе у нас расположился ресепшен и зона ожидания клиентов. Так же имеется техническое помещение.
В офисном пространстве имеются две рабочие зоны с посадкой на четыре человека, таким было требование заказчика. Каждая зона отделена от прохода стеклянными перегородками, так проходящие клиенты в переговорную не видят основную рабочую зону сотрудников, и сами сотрудники скрыты от посторонних глаз, таким образом получилась зона конфиденциальности.
Небольшая комнатка "чай, кофе" сделана для перекусов сотрудников и огорожена от основного зала стеклянной дверью. Так пространство остается светлым и воздушным.
В офисе имеются две переговорные комнаты, маленькая и большая.
Малая сделана на две персоны и также может быть использована для видеосозвонов сотрудников с клиентами.
Большая переговорная сделана в светло-кофейном оттенке, одна из стен выполнена в стеновых панелях с подсветкой по бокам. Комната рассчитана на четыре и более человек. Пространство обретает эксклюзивный, статусный дизайн, который становится визуальным выражением успеха и престижа.
Кабинет руководителя имеет светло-бежевую гамму. Он может выполнять функцию, как доппереговорная. Такое решение было одобрено звездным заказчиком. Открывающийся вид из окна добавляет свежести, бодрости и заряжает энергией.
#Конкурсная работа#Дизайн-проект#Победа в конкурсе#Дизайн-проект коммерции#Визуализация#Чертежная документация#Дизайн-проект под ключ#Дизайн интерьера#Дизайн интерьера Москва#Полный дизайн-проект#Рабочая зона#Кухня для сотрудников#Приемная зона#Переговорная комната#Коммерция#Юридическая фирма#Медийный заказчик




