#025 Конкурс_БД4_2025
14 мая, 2025Основная цветовая палитра проекта была выбрана светлой, акцентным оттенком выступил приглушенно оранжевый. Чтобы оранжевый не был "кричащим" цветом в интерьере, его "успокаивает" зеленый оттенок. Благодаря такому сочетанию квартира выглядит живой и уютной, тк именно такие оттенки отвечают за эти качества.
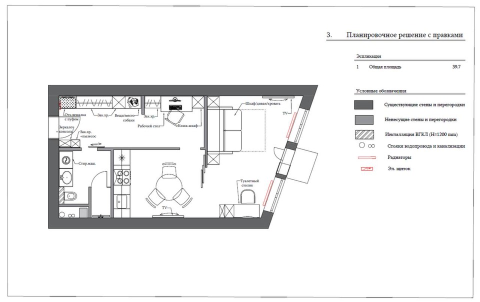
Планировка составлена согласна техническому заданию, все пожелания заказчика были учтены.
#Конкурсная работа#Победа в конкурсе#Дизайн-проект#Дизайн-проект Москва#Дизайн-проект квартиры#Визуализация#Чертежная документация#Дизайн-проект под ключ#Дизайн интерьера#Дизайн интерьера Москва#Полный дизайн-проект#Кухня-гостиная#Ванная#Душевая зона#Прихожая#Рабочее место#Спальня#Светлый интерьер#Современный стиль#Оранжевый#Зеленый#Комплектация




