#023 Квартира в новостройке
19 марта, 2025В квартире гостиная совмещена с кухней, спальня отделена перегородкой со шторой от общего пространства кухни-гостиной.
Таким образом, сердцем в данном помещении стала большая кухня-гостиная, здесь будет удобно, как сидеть за большим столом и принимать гостей, так и уютно посидеть на диване посмотреть телевизор.
В детской расположена двухъярусная кровать + зона для игр +рабочие места + большие места хранения.
Расположение ванной и туалетной комнаты заказчики захотели оставить от застройщика, раздельными.
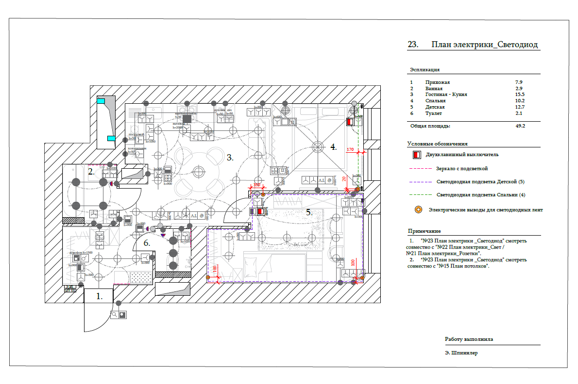
Интерьер был выбран в светлых тонах с точечными акцентами. Также в проекте был разработан разный сценарий освещения для комфортного проживания в данной квартире. Все пожелания заказчика были учтены и предусмотрены в проекте.
#Дизайн-проект#Дизайн интерьера Москва#Дизайн-проект квартиры#Дизайн-проект новостройки#Визуализация#Чертежная документация#Дизайн-проект под ключ#Дизайн интерьера#Полный дизайн-проект#Кухня-гостиная#Ванная#Спальня#Детская#Прихожая#Туалет#Современный стиль#Светлый интерьер#Комплектация




